关于安和街道雷大桥村十组陈纪生
危房改造批前公示
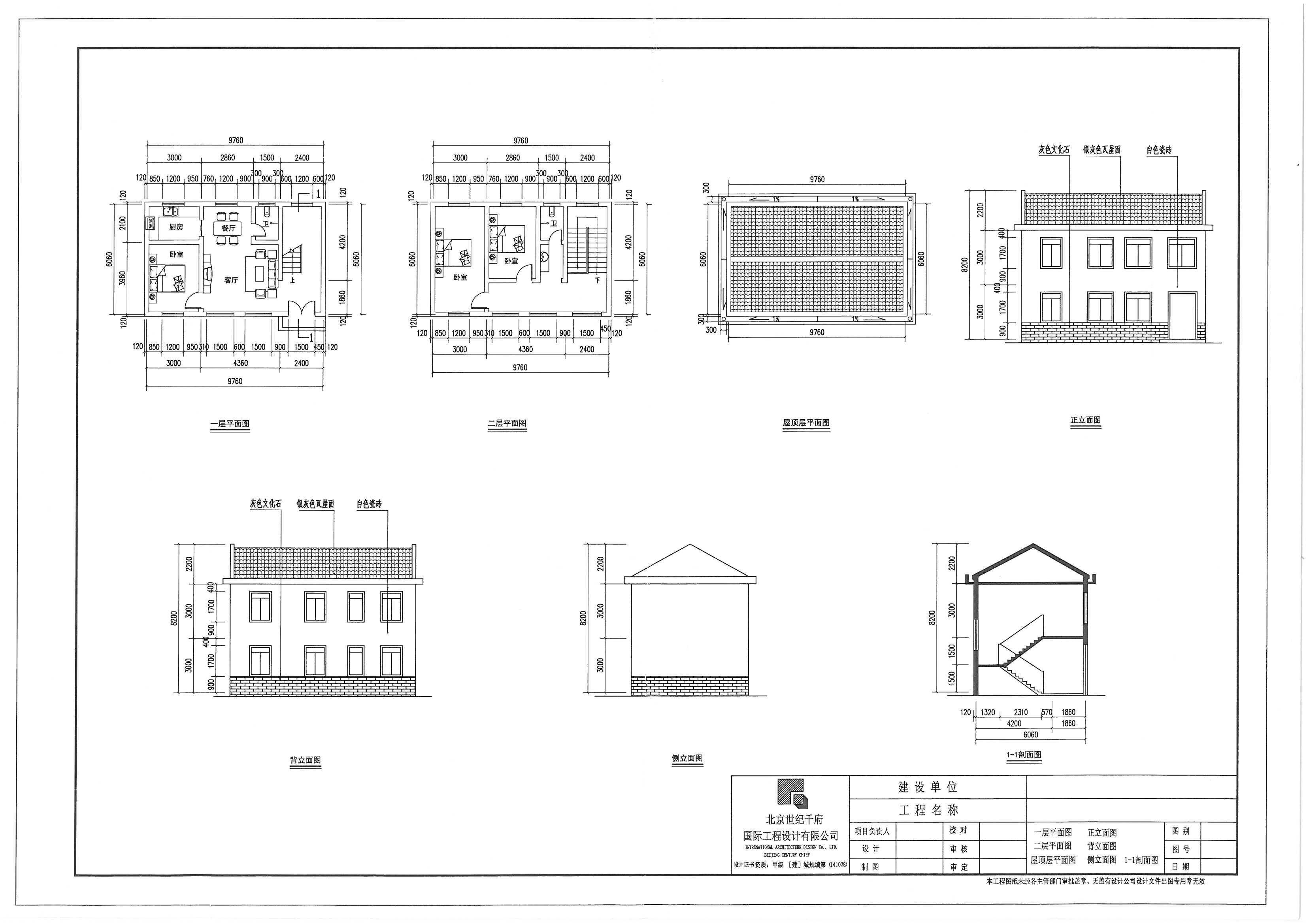
陈纪生(身份证:432801195010158018)系安和街道雷大桥村十组村民,由于现房屋年久失修等原因,经房产部门鉴定为D级危房。现经组、村、街道国土所、街道办事处初审合格,并向我局申请办理该户原址、原层数、原面积D级危房改造,拟占地面积63平方米,层数2层。现我局对该申请事项进行批前公示,以征求利害关系人的意见。
一、公示时间
2017年12月15日——2017年12月21日
二、公示方式和地点
网上公示:http://www.ghj.czs.gov.cn/
www.58wangcai.com
现场公示:安和街道雷大桥村十组
三、公示意见反馈方式
凡与本事项有重大利害关系的公民、法人以及其他组织,请在公示期间内持本人身份证件及证明利害关系的有效证据资料向我局依法行使陈述、申辩等权利。逾期不行使的,视为放弃上述权利。
四、咨询电话
0735-2158027
五、公示资料
1、建筑方案
2、建房位置平面图
3、置换协议
4、危房面积说明
郴州市城乡规划局
2017年12月15日




|